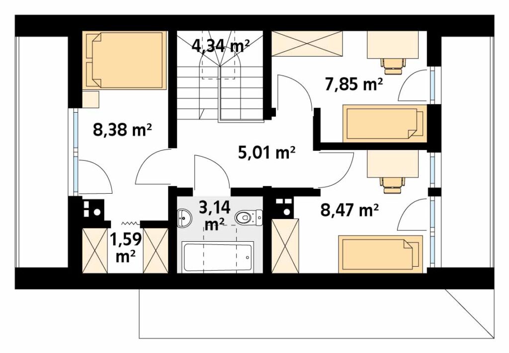
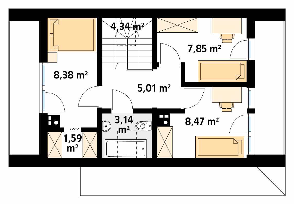
Szczegóły Projektu Rzut Parteru Pomieszczenia m2 Hall 6,80 m² Kuchnia 8,30 m² Pokój dzienny 21,50 m² Wiatrołap 4,70 m² Łazienka 4,20 m² Pokój 10,70 m² Pokój 12,30 m² Pokój 11,80 m² Kotłownia 4,20 m² Razem rzut parteru 84,50 m² Rzut Piętra Pomieszczenie m2 Korytarz 5,01 m² Pokój 8,38 m² (9 m²) Garderoba 1,59 m² (2,21 m²) Pokój 7,85 m² (8,97 m²) Pokój 8,47 m² (9,61 m²) Łazienka 3,14 m² (3,76 m²) Schody 4,34 m² Razem rzut poddasza 38,78 m² Razem: 123,28 m2 Zdjęcia Projektu Pobierz Wycenę Masz Więcej Pytań? Patryk 667 550 068 Piotr 663 210 415 Email sdmdomy@gmail.com Pobierz Wycenę Twoje imię i nazwisko Twój adres e-mail Numer kontaktowy Nasze Realizacje Zobacz Wszystkie Pustak Ceramiczny, Wszystkie Dom z Pustaków Ceramicznych Beton komórkowy, Wszystkie Dom z Betonu komórkowego